物件No.719
更新日
登録日
契約済み 読谷村伊良皆の外国人住宅
ペットの飼育も可◎
- 所在地
- 中頭郡読谷村伊良皆
- 家賃
- 132,000円
- 階層
- 1階
- 設備売買金額
- 200万円
詳細情報
物件概要
- 所在地
- 中頭郡読谷村伊良皆
- 坪数
- -
- 階層
- 1階
- EV
- 無し
- 駐車台数
- 4台無料
- 賃料
- 132,000円
- 備考
-
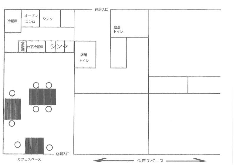
3LDK/LDK14/洋4.5/6/8
賃貸状況
- 賃料
- 132,000円
- 保証金
- 132,000円
- 共益費
- -
- 礼金
- 120,000円
- 敷金
- 120,000円
- 更新料
- -
- 営業時間
- -
- その他
- 火災保険:自己加入
- 備考
- -
店舗情報
- 営業年数
- -
- 業態
- カフェ
- その他
- -
売買設備
- 2面コールドテーブル
- 1
- グリーストラップ
- 1
- チェストストッカー
- 1
- 家庭用冷凍庫
- 1
- 3槽シンク
- 1
- ダクト設備一式
- 1
- TV
- 1
- トイレ一式( 上下水・照明)
- 1
- 作業台
- 1
- イス2脚・テーブルセット
- 2
- イス4脚・テーブルセット
- 1
- ドラム缶
- 1
- テレビ台
- 1
- 照明
- 1
- ベース
- 1
- アンプ
- 1
アクセスマップ
個⼈情報保護の観点から、おおまかな所在地のみ表⽰しております。
詳細な情報をご希望の⽅は、お問い合わせください。
この物件について問い合わせる
本居抜き物件のご相談・お問い合わせは下記のフォーム、電話、またはLINEからご連絡下さい。
3営業日以内にスタッフより折り返しご回答させていただきます。
※緊急の場合などは必ずお電話でご連絡ください。
物件内覧希望の方へ
事前予約でご案内が可能です!
※当日の内覧はご希望に添えない場合がございます。ご予約はお早めにお願いします。































