物件No.000000664
更新日
登録日
価格変更になりました!那覇市泉崎、ダイニングバー物件!
那覇バスターミナル近く、音響設備も充実のダイニングバーです。
- 所在地
- 那覇市泉崎
- 保証金
- -
- 階層
- -
- 設備売買金額
- 800万円
詳細情報
物件概要
- 所在地
- 那覇市泉崎
- 坪数
- 26坪
- 階層
- -
- EV
- -
- 駐車台数
- -
- 賃料
- 286,000円
- 備考
-
※保証会社別途契約。仲介手数料286,000円。 ※売り手のオーナー様契約時の金額です。相違がある場合は現状を優先します。 ※売主・貸主の意向により、条件が追加される場合がございます。
賃貸状況
- 賃料
- 286,000円
- 共益費
- -
- 礼金
- 286,000円
- 敷金
- 286,000円
- 更新料
- -
- 営業時間
- -
- その他
- -
- 備考
- -
店舗情報
- 営業年数
- -
- 業態
- ダイニングバー
- その他
-
【スタッフからのコメント】
那覇バスターミナル近くで、テレビ・マイク・その他音響設備が揃っているので通常のダイニングバー営業の他、結婚式の2次会等のパーティにもおすすめ!
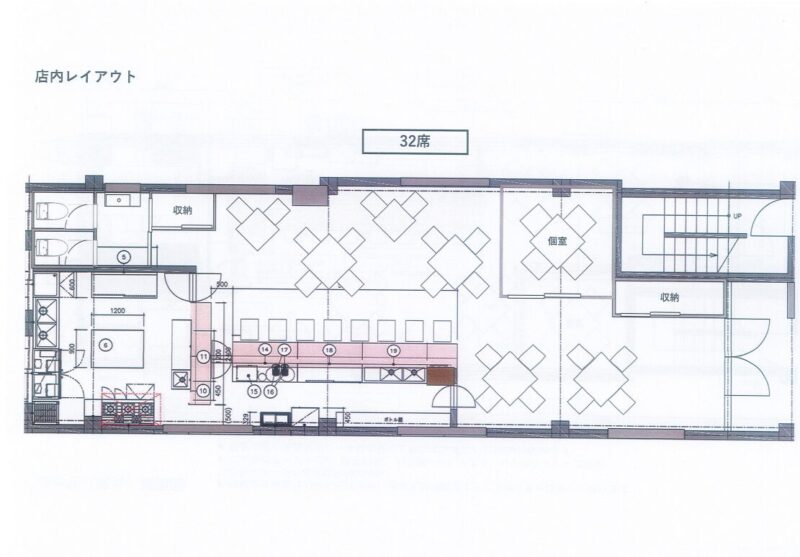
パーティ用にレイアウト変更も可能です!
照明にもこだわっているので、ぜひ一度内覧してみてください。
売買設備
- 1槽シンク
- 1
- 2槽シンク
- 1
- 2槽水切りシンク
- 1
- 5口ガスコンロ
- 1
- チェストストッカー
- 1
- 冷蔵ショーケース
- 2
- フライヤー
- 1
- 1口ガスコンロ
- 1
- ワインセラー
- 1
- 炊飯器
- 1
- 電子レンジ
- 1
- 業務用クーラー
- 2
- 家庭用クーラー
- 1
- 業務用4面冷蔵冷凍庫
- 1
- 食洗器
- 1
- ワークテーブル (中)
- 1
- ワークテーブル(大)
- 1
- シェルフ
- 4
- ダクト設備
- 1
この物件について問い合わせる
本居抜き物件のご相談・お問い合わせは下記のフォーム、電話、またはLINEからご連絡下さい。
3営業日以内にスタッフより折り返しご回答させていただきます。
※緊急の場合などは必ずお電話でご連絡ください。
物件内覧希望の方へ
事前予約でご案内が可能です!
※当日の内覧はご希望に添えない場合がございます。ご予約はお早めにお願いします。



















































