物件No.000000663
更新日
登録日
完了済 250万円に価格変更になりました!那覇市樋川の飲食物件でました!
国際通りまで徒歩10分!
- 所在地
- 那覇市2丁目
- 保証金
- -
- 階層
- 1階/3階建て
- 設備売買金額
- 250万円
詳細情報
物件概要
- 所在地
- 那覇市2丁目
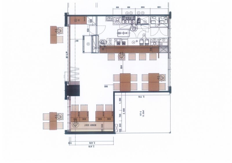
- 坪数
- 13.31坪
- 階層
- 1階/3階建て
- EV
- 有り
- 駐車台数
- 96台
- 賃料
- 169,400円
- 備考
-
※保証会社委託料225830円。仲介手数料169,400円。 ※売り手のオーナー様契約時の金額です。相違がある場合は現状を優先します。 ※売主・貸主の意向により、条件が追加される場合がございます。
賃貸状況
- 賃料
- 169,400円
- 共益費
- 56,430円
- 礼金
- -
- 敷金
- 508,200円
- 更新料
- -
- 営業時間
- -
- その他
- -
- 備考
-
売主様の守秘義務の為、住所の詳細をHP上に載せておりません。 住所をお知りになりたい方はメールまたはお電話・Instagramのダイレクトメッセージにてお気軽にお問合せくださいませ。
店舗情報
- 営業年数
- -
- 業態
- -
- その他
- -
売買設備
- 製氷機
- 1
- 3面コールドテーブル
- 1
- 4面業務用冷蔵冷凍庫
- 1
- 業務用クーラー
- 1
- 冷蔵ショーケース
- 2
- IHコンロ
- 1
- 3口ガスコンロ
- 2
- ガス飯器
- 1
- グリストラップ
- 1
- 家庭用電子レンジ
- 1
- ワークテーブル(大)
- 2
- 吊戸棚
- 2
- 1槽シンク
- 3
- トースター(家庭用)
- 1
- ダクト設備
- 2
- ソーダストリーム
- 1
- 炊飯器
- 1
- イス・テーブル・カウンター一式
- 1
- 音響一式
- 1
この物件について問い合わせる
本居抜き物件のご相談・お問い合わせは下記のフォーム、電話、またはLINEからご連絡下さい。
3営業日以内にスタッフより折り返しご回答させていただきます。
※緊急の場合などは必ずお電話でご連絡ください。
物件内覧希望の方へ
事前予約でご案内が可能です!
※当日の内覧はご希望に添えない場合がございます。ご予約はお早めにお願いします。



















































